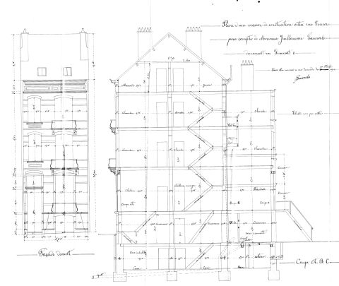
Renovation of a 1908 townhouse into social housing, developed within a constrained budget and timeline. ×

type : Collective housing

surface : 350 m2

status : Built

localisation : Schaerbeek

années : 2019 - 2022

client: Agence Schaerbeekoise immobilière sociale - RenovaS
stability: MC Carré
TS: Energ-Ir
CSS & PEB: COPEB

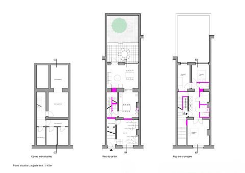
Renovation of a 1908 townhouse into social housing, developed within a constrained budget and timeline. The project prioritises spatial quality, habitability, durability and circularity, while carefully preserving and enhancing the building’s architectural heritage.

Existing elements were largely retained or reused, with new interventions designed as simple, efficient and reversible. The result is a set of generous, light-filled dwellings that demonstrate how high-quality, sustainable social housing can be achieved with limited means.