Suite nuptiale, starting from a demanding volumetric configuration with an extremely limited usable space (1.5 m wide), a simple program, and open-minded clients seeking a unique project tailored ×

type : Individual house

surface : 30 m2

status : Built

localisation : Masnuy Saint Jean

années : 2011 - 2012

joinery: Mesa Verde

photos:
1–2 © Maxime Delvaux
3–6 ©bepictures

l4house-design

starting from a demanding volumetric configuration with an extremely limited usable space (1.5 m wide), a simple program, and open-minded clients seeking a unique project tailored to their needs, the concept focused on transparency in order to optimize spatial continuity.

This led to a rational, sequential organization of the different functions: 1.vanity / reading corner, 2.bathroom, 3.bedroom.

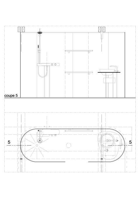
The bathroom, positioned at the center of the space, takes the form of a curved glass box that articulates the volumes while maintaining visual transparency between them. A longitudinal roof light is cut into the ceiling, bringing natural light deep into the space.

The built-in furniture is fully integrated into the walls, and sanitary fixtures are suspended or fixed directly onto the glazing to give the elements a sense of lightness and suspension.

The overall composition is defined by white surfaces and reflections that visually enlarge the volumes, extend views, create moments of surprise, and subtly disorient the senses.

Although simple in appearance, the project required extensive technical development down to the smallest detail to achieve the intended effect of diaphaneity (for example: the shower water supply, the drainage of the washbasin, the suspension of the furniture and mirror, the integration of mirrors within the partitions, the built-in cabinetry within the gable wall, and the glazed partitions).