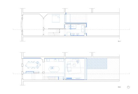
This transformation project focuses on restructuring the living areas and an upstairs bathroom. ×
type : Individual house
surface : 222 m2
status : Built
localisation : Schaerbeek
années : 2021 - 2025
client: Private
stability: MC Carré
photos : ©Jeroen Verrecht
This transformation project focuses on restructuring the living areas and an upstairs bathroom. The intervention redefines the interior atmosphere through a clear segmentation of spaces, highlighted by white framing elements. Each room adopts its own materiality: wood-lined walls in the living room, a light terrazzo floor with emerald-stained joinery in the kitchen, and a more understated dining room.
A custom-made unit separates the dining room from the entrance hall, accessible from both sides. Detached from the adjacent wall, it preserves visual porosity and creates a continuous view from the entrance to the dining room, structuring the space while maintaining fluidity.
On the garden side, the north-facing façade maximises natural light through a full-height window and a skylight that brightens the central space. The exterior wooden cladding is treated with the Japanese shou sugi ban technique for durability. A mirrored band brings lightness to the lower register and ensures a subtle transition to the upper levels.