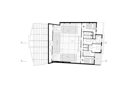
The Marni theater project reorganizes circulation, capacity, and functionality while ensuring safety and accessibil ×
type : Social-cultural equipement
surface : 4000 m2
status : Unbuilt
localisation : Ixelles
année : 2011
Restricted competition FWB, Winner
scenography:TTAS
TS/PEB:Concept Control SA
stability: MC Carré
acoustics: Daidalos Peutz
signage: Face to Face
The Marni theater project reorganizes circulation, capacity, and functionality while ensuring safety and accessibility. The main interventions include repositioning the main hall, upgrading staircases and elevator shafts, and creating flexible spaces for foyers, loges, and offices. Key objectives are improved vertical circulation, enhanced audience experience, acoustic and structural optimization, and clear, independent flows for public, staff, and artists. Two scenarios were studied, with the presented option offering maximum efficiency and flexibility.