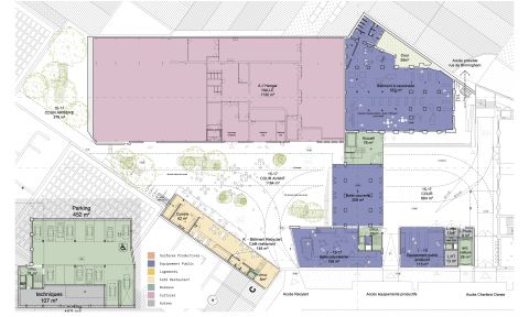
Located in Molenbeek, the project reactivates a former industrial site through a mixed cultural and productive programme. ×
type : Mixed-use
surface : 8333 m2
status : Competition
localisation : Molenbeek
année : 2021 - 2021
In association with Encore Heureux
contracting authority: SPRB Urbanism and Heritage
client: Urban Development Company (SAU)
stability: Ney & Partners
acoustics: Daidalos Peutz
ts & peb: Détang Engineering
css: COPEB
Located in Molenbeek, the project reactivates a former industrial site through a mixed cultural and productive programme.
A new street-front building unifies the parcels and creates a clear interface between the public realm and the inner courtyards. Designed in two layers, it combines a brick masonry base referencing Brussels’ industrial heritage with a contemporary timber upper volume. Carefully placed openings and passages enhance permeability and visual connections.
The scheme brings together a cultural hall, café, productive workshops, public facilities and artist housing. Existing industrial buildings are preserved with minimal intervention, highlighting their original structures and character.
Conceived as an open, flexible and durable place, the project strengthens the relationship between culture, craftsmanship and the city.