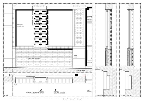
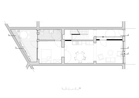
The project transforms the ground floor of an existing building into an affordable, accessible housing unit for one or two people. It focuses on two main challenges: ×
type : Individual house
surface : 268 m2
status : Built
localisation : Schaerbeek
années : 2018 - 2021
client : ASIS
PEB / CSS : COPEB
The project converts the ground floor of an existing building into affordable, accessible housing for one or two people. It addresses two main challenges: optimizing livability within a limited space and enhancing the relationship to the street. The apartment is organized in a linear sequence from public to private, with a large living area of over 30 m² facing the street and a bedroom opening onto a private, permeable courtyard. Access is relocated inside the building to ensure privacy and regulatory compliance. The unit includes a fully accessible bathroom and follows a through-layout typical of Brussels houses, with a gradual acoustic transition from street to courtyard, while allowing targeted deviations from regulations to improve overall comfort.optimizing livability within a constrained space and improving the relationship to the street. The apartment is organized in a linear sequence from public to private, with a large living space of over 30 m² facing the street and a bedroom opening onto a private, permeable courtyard. Access is relocated inside the building to ensure privacy and regulatory compliance. The unit includes a fully accessible bathroom and follows a through-layout typical of Brussels houses, with a gradual acoustic transition from street to courtyard, while allowing targeted deviations from regulations to enhance overall comfort.